KITCHEN
Esquire kitchens are fitted with a range of bespoke wall and floor cabinets from either a traditional or contemporary style range, high grade laminate or quartz work surfaces, upstands and splashback. Choice of complementary cabinet handles, or handless options with sink and tap selections. Utility rooms (where applicable) are fitted with a range of cabinets, laminate work surface, with space for a free-standing washing machine and tumble dryer.
Crescent Collection
NEFF appliances include x2 single oven, x1 combi microwave and 14cm warming drawer. NEFF 4 zone induction Flexigrid vented downdraft hob, dishwasher, wine cooler. Quartz worktop to kitchen as standard, and choice of undermounted sink.
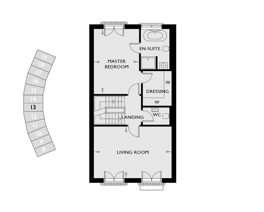
BATHROOM, EN-SUITE AND CLOAKROOM
An Esquire bathroom is the perfect place to unwind, relax and feel refreshed. All cloakrooms benefit from vanity units, heated electric towel rails and underfloor heating. Bathrooms in all of our homes feature contemporary white sanitaryware with chrome fittings, heated electric towel rails, vanity units, shaver points and either a shower over
the bath with glass screen or freestanding bath / tiled bath with separate rainfall shower.
Crescent Collection
Master en-suites to The Wealden and The Goddard include a bespoke boutique hotel style concept with double vanity units, wall mounted taps, shaver sockets, rainfall shower with a stylish glass fluted door, and separate toilet enclosure. The freestanding bath is located centrally within the bedroom with a heated electric towel rail. Master en-suites to
The Hemsted and The Cavendish include a freestanding bath, vanity unit, wall mounted taps, heated electric towel rails, shaver sockets, and rainfall shower with a stylish fluted
glass enclosure. En-suite bathrooms to bedroom 2 to all plots within
The Crescent Collection include a rainfall shower with a stylish fluted glass enclosure, contemporary white sanitaryware with chrome fittings, heated
electric towel rails, vanity units, shaver points.
INTERNAL FEATURES
A choice of porcelain floor tiles to kitchen, utility, bathroom, en-suites and cloakroom, with a choice of porcelain wall tiles to bathroom and en-suites. Attractive white satin painted skirtings and architraves provided throughout, with white satin painted internal moulded doors with polished chrome ironmongery. Bespoke white painted staircase with oak handrail.
Walk in wardrobes to the master bedroom to all plots within The Crescent Collection. Walk in wardrobes to bedroom 2 to The Hemsted and The Cavendish. Fitted wardrobes to bedroom 2 to The Wealden and The Goddard. Fitted wardrobes to bedroom 3 to The Wealden and The Goddard.
EXTERNAL FEATURES
Crescent Collection
Gated entrance with video intercom. Powered garage doors with key fob entrance. Juliet balcony to living room. Refuse stores in garage.
HEATING AND ELECTRICAL
LED recessed downlights to kitchen, bathroom, en-suites and hallway, with low energy pendant fittings to living room, dining room, all bedrooms and landing. Generous supply of white power outlets throughout, including USB charge points to kitchen, living room, master bedroom and study where applicable.
Telephone point in hallway, living room and master bedroom. Homes wired for Sky and Freeview TV distribution to living room, dining room, study and all bedrooms. Power and lighting provided to loft space and garages. Underfloor heating provided to downstairs, upstairs heated via radiators all powered by an air source heat pump.
SAFETY AND SECURITY
Mains fed smoke and heat detectors with battery backup. PVCu double glazed windows and external doors with multi point locking system. Ring wired front doorbell to all homes. Carbon monoxide detectors are installed for added peace of mind and meet the latest safety standards throughout the home.