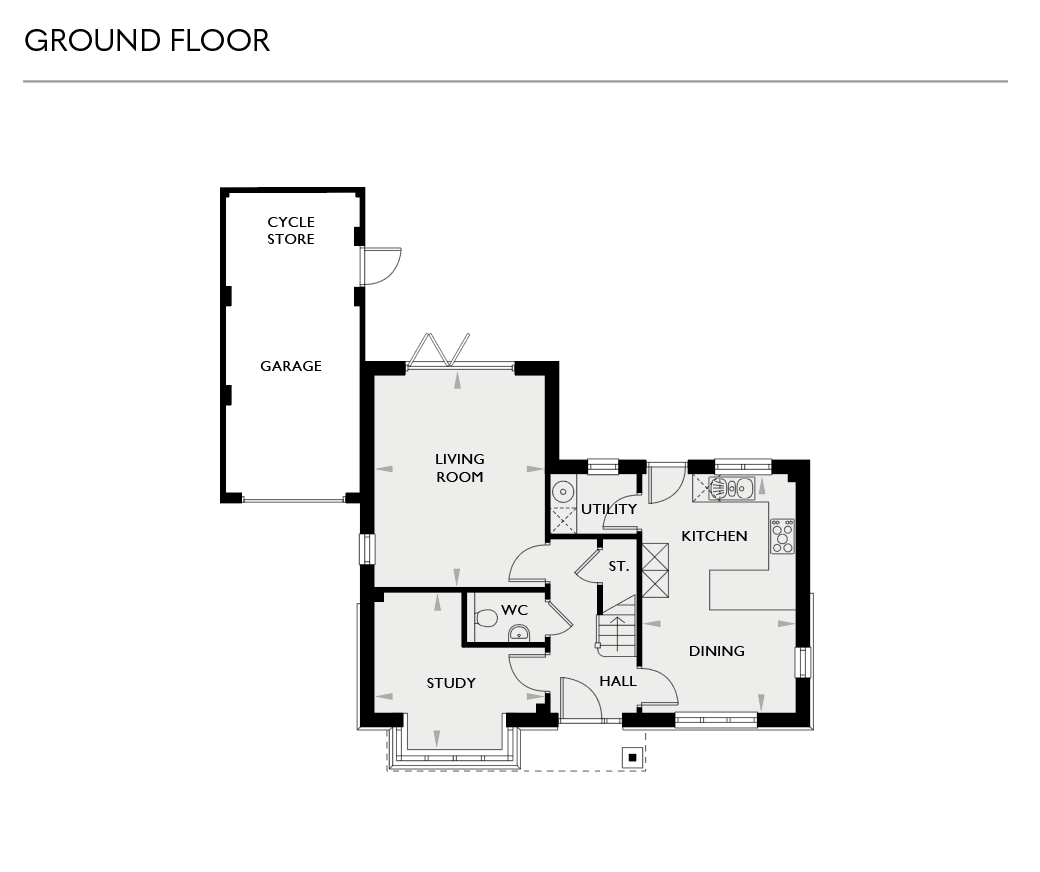
Plot 65
Dahlia
Arundel Gate
3 Bedroom Detached
Price: (RESERVED)
- Total Area 122.4 sqm / 1,317 sqft
Dahlia
Arundel Gate
3 Bedroom Detached
Price: (RESERVED)

| MM | FT | |
|---|---|---|
| Living Room | 4815 x 3845 | 15'9'' x 12'7'' |
| Kitchen/Dining | 5410 x 3500 | 17'9'' x 11'6'' |
| Study | 3845 x 3530 | 12'7'' x 11'7'' |

| MM | FT | |
|---|---|---|
| Master Bedroom | 3250 x 3245 | 10'8'' x 10'8'' |
| Bedroom 2 | 3555 x 2840 | 11'8'' x 9'4'' |
| Bedroom 3 | 3510 x 2985 | 11'6'' x 9'9'' |
All images and floor plans are for illustrative purposes only and may be changed due to existing building constraints. All dimensions are indicative and are not to be used for carpet sizes, appliance spaces or items of furniture.
Toggle between property types below to view on our interactive Site Plan.
Esquire Kitchens are fitted with a range of bespoke wall and floor cabinets from either a traditional or contemporary style range, high grade laminate or quartz work surfaces, upstands & splashback. Choice of complementary cabinet handles, or handless options with sink and tap selections.
Utility rooms (where applicable) are fitted with a range of cabinets, laminate work surface, with space for a free-standing washing machine and tumble dryer.
Larkspur
NEFF appliances include single oven, 5 zone induction hob, 60/40 fridge freezer, dishwasher and Elica extractor.
Allium, Dahlia, Lily, Hyacinth, Monsella, Orchid, Swithins & Tulip
NEFF appliances include double oven, 5 zone induction hob, 60/40 fridge freezer, dishwasher and Elica extractor.
Apeldoorn, Bishop & Desdemona
NEFF appliances include x 2 single oven, x 1 combi microwave and 14cm warming drawer. NEFF 4 zone induction Flexigrid vented downdraft hob, dishwasher, 30cm wine cooler. Quartz worktop to Kitchen as standard, and choice of undermounted sink.
An Esquire bathroom is the perfect place to unwind, relax and feel refreshed. Bathrooms in all of our homes feature contemporary white sanitaryware with chrome fittings, heated electric towel rails, vanity units, shaver points and a shower over the bath with glass enclosure. En-suites include shaver points, vanity units, rainfall shower with additional handheld shower head. All cloakrooms benefit from vanity units, heated electric towel rails and underfloor heating. Freestanding bath to en-suite in Apeldoorn, Desdemona & Bishop.Separate shower enclosure and bath to Swithins, Orchid & Lily main bathroom. Separate shower enclosure and freestanding bath to Apeldoorn, Bishop & Desdemona main bathroom.His and her sinks in Desdemona and Bishop en-suites.
A choice of porcelain floor tiles to kitchen, utility, bathroom, en-suites and cloakroom, with a choice of porcelain wall tiles to bathroom and en-suites. Attractive white satin painted skirtings and architraves provided throughout, with white satin painted internal moulded doors with polished chrome ironmongery. Bespoke white painted staircase with oak handrail.Built in wardrobes to master bedroom, with pure white glass infills to all homes.Built in wardrobes to bedroom 2 in Bishop, Apeldoorn & Desdemona.
Turf, patio area and closeboard fencing to rear garden with turf and feature landscaping to front garden. Block paved driveways.Indian sandstone patio.Cold mains outside tap and with water butts to all homes Electric vehicle charging point (EVCP) to all homes.PIR convenience lighting to front and rear.
LED recessed downlights to kitchen, bathroom, en-suites and hallway, with low energy pendant fittings to living room, dining room, all bedrooms and landing.Generous supply of white power outlets throughout, including USB charge points to kitchen, living room, master bedroom and study where applicable.Telephone point in hallway, living room and master bedroom.Homes wired for Sky & Freeview TV distribution to living room, dining room, study and all bedrooms.Power and lighting provided to loft space and garages. Underfloor heating provided to downstairs, upstairs heated via radiators all powered by an air source heat pump.
Mains fed smoke and heat detectors with battery back up.PVCu double glazed windows and external doors with multi point locking system.Ring wired front doorbell to all homes.