Plot 31
Laburnham
Honeywood Mews
3 Bedroom End-terrace / Brick & Weatherboard
- Total Area 109.7 sqm / 1,181 sqft
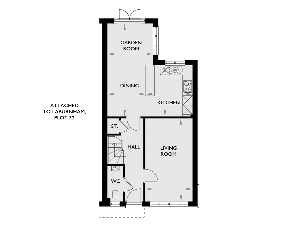
Laburnham
Honeywood Mews
3 Bedroom End-terrace / Brick & Weatherboard

| MM | FT | |
|---|---|---|
| Living Room | 3069 x 5366 | 10’1” x 17’7” |
| Kitchen | 3045 x 3292 | 10’0” x 10’10” |
| Dining | 2490 x 3292 | 8’2” x 10’10” |
| Garden Room | 2948 x 2700 | 9’8” x 8’10” |

| MM | FT | |
|---|---|---|
| Master Bedroom | 4044 x 3651 | 13’3” x 12’0” |
| Bedroom 2 | 2948 x 5011 | 9’8” x 16’5” |
| Bedroom 3 | 2474 x 3023 | 8’1” x 9’11” |
All images and floor plans are for illustrative purposes only and may be changed due to existing building constraints. All dimensions are indicative and are not to be used for carpet sizes, appliance spaces or items of furniture.
Toggle between property types below to view on our interactive Site Plan.
KITCHEN
Esquire Kitchens are fitted with a range of bespoke wall and floor cabinets from either a traditional or contemporary style range, high grade laminate or quartz work surfaces (to selected plots), upstands and splashback. Choice of complementary cabinet handles, or handless options with sink and tap selections.
Birch and Cherry:
NEFF Appliances include Single Oven, 4 Zone Induction Hob, 60/40 Fridge Freezer, Dishwasher and Elica Integrated Extractor.
Chestnut, Hazel, Laburnham and Laurel:
NEFF Appliances include Double Oven, 5 Zone Induction Hob, 60/40 Fridge Freezer, Dishwasher and Elica Integrated Extractor.
BATHROOM, EN-SUITE AND CLOAKROOM
An Esquire bathroom is the perfect place to unwind, relax and feel refreshed. Bathrooms in all of our homes feature contemporary white sanitaryware with chrome fittings, heated electric towel rails, vanity units, shaver points and a shower over the bath with glass enclosure. En-suites include shaver points, vanity units, rainfall shower with additional handheld shower head. All cloakrooms benefit from vanity units, heated electric towel rails and underfloor heating.
INTERNAL FEATURES
A choice of porcelain floor tiles to kitchen, bathroom, en-suites and cloakroom, with a choice of porcelain wall tiles to bathroom and en-suites. Attractive white satin painted skirtings and architraves provided throughout, with white satin painted internal moulded doors with polished chrome ironmongery. Bespoke white painted staircase with oak handrail. Built in wardrobes to master bedroom, with pure white glass infills to all homes.
EXTERNAL FEATURES
Turf, patio area and closeboard fencing to rear garden with turf and feature landscaping to front garden. Block paved driveways. Indian sandstone patio. Cold mains outside tap to all homes. Electric vehicle charging point (EVCP) to all homes. PIR convenience lighting to front and rear.
HEATING & ELECTRICAL
LED recessed downlights to kitchen, bathroom, en-suites, study (where applicable) and hallway, with low energy pendant fittings to living room, dining room, all bedrooms and landing. Generous supply of white power outlets throughout, including USB charge points to kitchen, living room, master bedroom and study where applicable. Telephone point in hallway, living room and master bedroom. Homes wired for Sky and Freeview TV to living room. Standard TV points to living room, dining room, study and all bedrooms.
Power and lighting provided to loft space and garages. Underfloor heating provided to downstairs, upstairs heated via radiators all powered by an air source heat pump. Electric towel radiators to bathrooms and en-suites.
SAFETY AND SECURITY
Mains fed smoke and heat detectors with battery back up. PVCu double glazed windows and external doors with multi point locking system. Ring wired front doorbell to all homes. Carbon monoxide detectors are installed for added peace of mind and meet the latest safety standards throughout the home. Wireless access to electric entrance gates including fob with a keycode