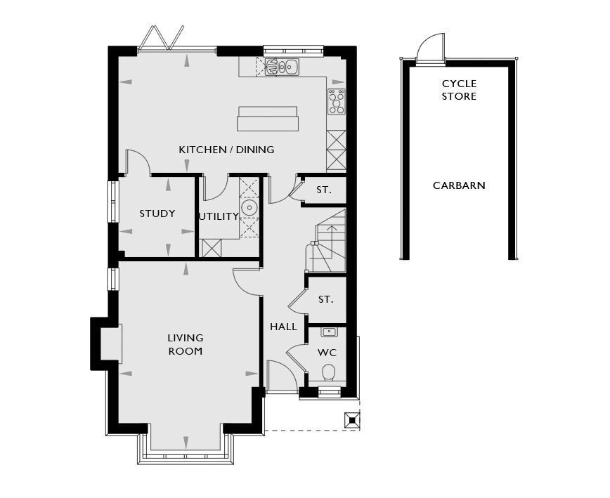
Plot 24
Lily
Garland Park
4 Bedroom Detached Home
- Total Area 155.5 sqm / 1,674 sqft
Plot is handed
Lily
Garland Park
4 Bedroom Detached Home
Plot is handed

| MM | FT | |
|---|---|---|
| Living Room | 5845 x 4365 | 19'2'' x 14'4'' |
| Kitchen/Dining | 7065 x 3595 | 23'2'' x 11'9'' |
| Study | 2485 x 2365 | 8'2'' x 7'9'' |

| MM | FT | |
|---|---|---|
| Master Bedroom | 3810 x 3540 | 12'6'' x 11'7'' |
| Bedroom 2 | 3700 x 2805 | 12'1'' x 9'2'' |
| Bedroom 3 | 3605 x 3235 | 11'10'' x 10'7'' |
| Bedroom 4 | 3420 x 2795 | 11'2'' x 9'2'' |
All images and floor plans are for illustrative purposes only and may be changed due to existing building constraints. All dimensions are indicative and are not to be used for carpet sizes, appliance spaces or items of furniture.
Toggle between property types below to view on our interactive Site Plan.
Esquire kitchens are fitted with a range of bespoke wall and floor cabinets from either a traditional or contemporary style range, high grade laminate or quartz work surfaces, upstands and splashback. Choice of complementary cabinet handles, or handless options with sink and tap selections. Utility rooms (where applicable) are fitted with a range of cabinets, laminate work surface, with space for a free-standing washing machine and tumble dryer.
Cherry, Chestnut, Hazel, Dahlia, Sycamore, Mulberry, Pear and Lily
NEFF appliances include double oven, 5 zone induction hob, 60/40 fridge freezer, dishwasher and Elica extractor.
Alder, Apeldoorn and Hemlock
NEFF appliances include x2 single oven, x1 combi microwave and 14cm warming drawer. NEFF 4 zone induction Flexigrid vented downdraft hob, dishwasher, wine cooler. Quartz worktop to kitchen as standard, and choice of undermounted sink.
Orchid
NEFF appliances include x1 single oven, x1 combi microwave. NEFF 5 zone induction hob, dishwasher, wine cooler. Quartz worktop to kitchen as standard, and choice of undermounted sink.
An Esquire bathroom is the perfect place to unwind, relax and feel refreshed. All cloakrooms benefit from vanity units, heated electric towel rails and underfloor heating. Bathrooms in all of our homes feature contemporary white sanitaryware with chrome fittings, heated electric towel rails, vanity units, shaver points and either a shower over
the bath with glass screen or freestanding bath / tiled bath with separate rainfall shower.
His and her basins in: Orchid, Alder and Hemlock. Separate shower enclosure and freestanding bath to (en-suite and main bathroom): Apeldoorn, Alder and Hemlock. En-suites to bedroom 2 in: Orchid, Apeldoorn, Alder and Hemlock.
En-suites to bedroom 3 in: Alder and Hemlock. Stylish fluted glass enclosure to ensuite to Hemlock and Alder.
Wall mounted taps to Hemlock and Alder.
A choice of porcelain floor tiles to kitchen, utility, bathroom, en-suites and cloakroom, with a choice of porcelain wall tiles to bathroom and en-suites. Attractive white satin painted skirtings and architraves provided throughout, with white satin painted internal moulded doors with polished chrome ironmongery. Bespoke white painted staircase with oak handrail. Built in wardrobes to master bedroom, with pure white glass infills to all homes*. Built in wardrobes to bedroom 2 in the Apeldoorn, Alder and Hemlock. Dressing rooms to master bedroom in the Apeldoorn, Alder and Hemlock.
*Excluding walk-in wardrobes and dressing rooms.
Turf, patio area and closeboard fencing to rear garden with turf and feature landscaping to front garden. Block paved driveways. Indian sandstone patio. Cold mains outside tap and with water butts to all homes Electric vehicle charging point (EVCP) to all homes.PIR convenience lighting to front and rear.
LED recessed downlights to kitchen, bathroom, en-suites and hallway, with low energy pendant fittings to living room, dining room, all bedrooms and landing. Generous supply of white power outlets throughout, including USB charge points to kitchen, living room, master bedroom and study where applicable.
Telephone point in hallway, living room and master bedroom. Homes wired for Sky and Freeview TV distribution to living room, dining room, study and all bedrooms. Power and lighting provided to loft space and garages. Underfloor heating provided to downstairs, upstairs heated via radiators all powered by an air source heat pump.
Mains fed smoke and heat detectors with battery backup. PVCu double glazed windows and external doors with multi point locking system. Ring wired front doorbell to all homes.
Carbon monoxide detectors are installed for added peace of mind and meet the latest safety standards throughout the home.